Аренда и продажа недвижимости в Москве

ОСНОВНАЯ ИНФОРМАЦИЯ

  • Класс
    A
  • Площадь
    396 м2
  • Этаж
    45
  • Отделка
    С отделкой
  • Тип планировки
    Смешанная
  • Паркинг
    Наземный крытый
  • Налоговая
    №3

Расположение объекта

ОПИСАНИЕ

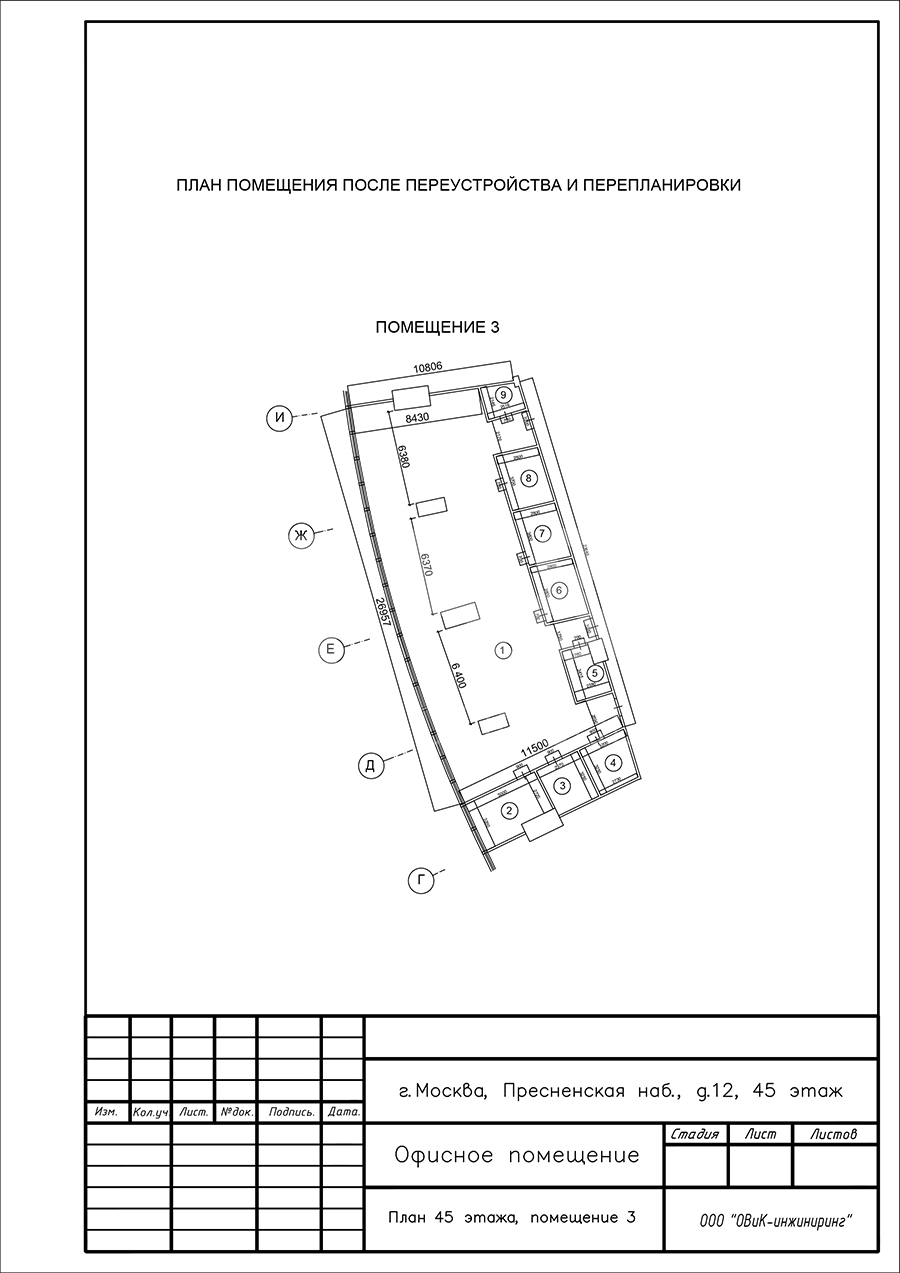
Аренда офиса 396 кв. м в МФК «Башня Федерация (Восток)» (класс A).
Этаж: 45.
Отделка - с отделкой
Тип планировки - смешанная.
Вход - общий с улицы
Мокрые точки - нет
Сан. узлы - на этаже
Назначение: Офис

Полная ставка аренды - 72 000 руб. за кв. м/год. Налог: УСН, эксплуатация включена
Месячный арендный платеж – 2 376 000 руб./месяц.
Коммунальные расходы - По счётчикам

МФК «Башня Федерация (Восток)» находится по адресу: Москва, Пресненская набережная, 12.
Район: Пресненский
Год постройки здания: 2008
Налоговая: 3
Наличие паркинга: подземный, стоимость 36 000 руб. месяц (1 м/м)
Вентиляция: приточно-вытяжная
Пожарная система: Да
Ближайшие станции метро: Деловой центр (2 минут пешком), Москва-Сити (1 минут пешком)
Инфраструктура: Бар, Кафе, Ресторан, Столовая, Цветочный салон, Гостиница
Кол-во лифтов: 67
Юридический адрес: предоставляется

Позвоните и мы ответим на все Ваши вопросы, направим презентацию с планировками и оперативно организуем показ. Наши услуги для Вас бесплатны!

Для быстрого поиска объекта в СРМ назовите менеджеру ID данного помещения - 5236

ID: 5236

 
Башня Федерация (Восток)