Аренда и продажа недвижимости в Москве

ОСНОВНАЯ ИНФОРМАЦИЯ

  • Класс
    A
  • Площадь
    578 м2
  • Этаж
    1
  • Отделка
    С отделкой
  • Тип планировки
    Смешанная
  • Паркинг
    Наземный крытый
  • Налоговая
    №28

Расположение объекта

ОПИСАНИЕ

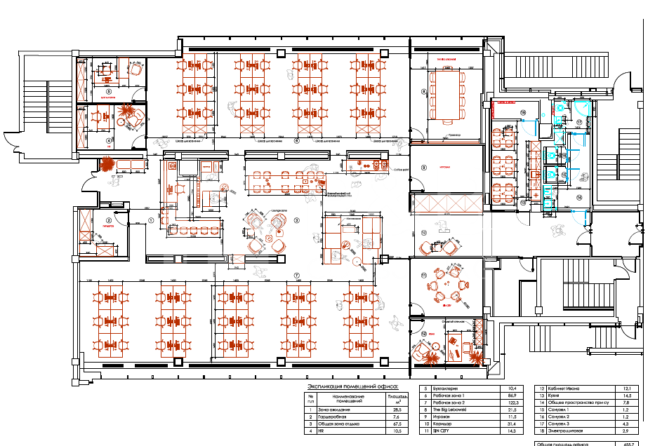
Сдается офис 578 кв. м в Бизнес-центр «Кругозор (строение 1)» (класс A).
Этаж: 1.
Отделка – с отделкой.
Тип планировки – смешанная.
Кол-во мокрых точек – null.

Полная ставка аренды - 45 240 руб. за кв. м/год. НДС – включен, ОРЕХ – включен
Месячный арендный платеж – 2 179 060 руб./месяц.
Срок освобождения - 14 декабря 2025 года(можно раньше).

Бизнес-центр «Кругозор (строение 1)» находится по адресу: Обручева ул., 30/1 стр. 1.
Район: Коньково
Год постройки здания: 1976
Налоговая: 28
Наличие паркинга: Наземная/Подземная
Парковочный коэффициент: 15
Стоимость паркинга - 30 000 руб. за 1 машино место в месяц включая НДС
Вентиляция: приточно-вытяжная
Пожарная система: Гидратная
Ближайшие станции метро: Калужская (10 минут пешком)
Инфраструктура: Фитнес-клуб, Студия йоги, Гостиница, Химчистка, Турагенство,
Срочное фото, Салон красоты, Ремонт одежды, Столовая, Ресторан, Кафе, Бар
Кол-во лифтов: 3.

Позвоните и мы ответим на все ваши вопросы и предоставим необходимую информацию для
изучения заинтересовавшего вас помещения. Все объявления в нашем аккаунте
актуальны. Наши услуги бесплатны для будущих арендаторов!

Для быстрого поиска объекта в СРМ назовите менеджеру ID данного офиса - 1608

ID: 1608

 
Кругозор (строение 1)


     

    Ваш консультант

    Сергей