Аренда и продажа недвижимости в Москве

ОСНОВНАЯ ИНФОРМАЦИЯ

  • Класс
    A
  • Площадь
    1 573 м2
  • Этаж
    11
  • Отделка
    С отделкой
  • Тип планировки
    Смешанная
  • Паркинг
    Наземный крытый
  • Налоговая
    №10

Расположение объекта

ОПИСАНИЕ

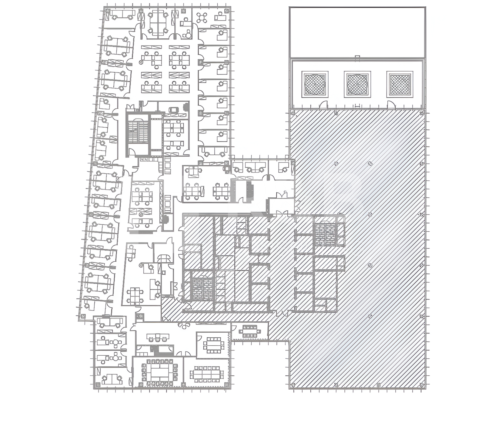
Аренда офиса 1573 кв. м в бизнес-центре «Белые сады» (класс A).
Предлагается в аренду офисный блок на 102 раб.мест , состоит из 39 кабинетов и 4 переговорных. Центральная система кондиционирования и приточно-вытяжная система вентиляции.
Дополнительные зоны: две кухни, серверная, вид на Москва-Сити.
Этаж: 11.
Отделка - с отделкой
Тип планировки - смешанная.
Мокрые точки - да
Сан. узлы - в блоке
Наличие кухни - да.
Помещение - свободно с 01.01.2027.
Назначение: Офис

Полная ставка аренды - 110 400 руб. за кв. м/год. НДС включен, эксплуатация включена
Месячный арендный платеж – 14 471 600 руб./месяц.
Коммунальные расходы - По счётчикам

Бизнес-центр «Белые сады» находится по адресу: Москва, Лесная улица, 7.
Район: Тверской
Год постройки здания: 2013
Налоговая: 10
Вентиляция: приточно-вытяжная
Пожарная система: Спринклерная
Ближайшие станции метро: Белорусская (3 минут пешком)
Инфраструктура: Бар, Кафе, Ресторан, Столовая, Курьерские услуги, Банк, Банкомат, Ремонт одежды, Салон красоты, Срочное фото, Турагенство, Химчистка, Полиграфия, Супермаркет, Цветочный салон, Автомойка, Автосервис, Кинотеатр, Аптека, Медицинский центр, Ремонт обуви, Магазин, Гостиница, Бюро переводов, Иностранные языки, Студия йоги, Фитнес-клуб, Заправка картриджей, Ремонт оргтехники
Кол-во лифтов: 14
Юридический адрес: предоставляется

Позвоните и мы ответим на все Ваши вопросы, направим презентацию с планировками и оперативно организуем показ. Наши услуги для Вас бесплатны!

Для быстрого поиска объекта в СРМ назовите менеджеру ID данного помещения - 14508

ID: 14508

 
Белые сады


     

    Ваш консультант

    Елена