Аренда и продажа недвижимости в Москве

ОСНОВНАЯ ИНФОРМАЦИЯ

  • Класс
    B
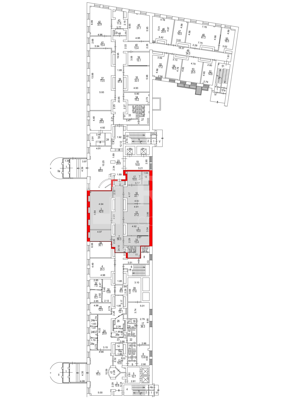
  • Площадь
    216 м2
  • Этаж
    1
  • Отделка
    С отделкой
  • Тип планировки
    Кабинетная
  • Паркинг
    Наземный крытый
  • Налоговая
    №14

Расположение объекта

ОПИСАНИЕ

Аренда офиса 216 кв. м в бизнес-центре «Авион (строение 2)» (класс B).
Этаж: 1.
Отделка - с отделкой
Тип планировки - кабинетная.
Вход - общий с улицы
Мокрые точки - да
Сан. узлы - в блоке
Наличие кухни - да.
Назначение: Офис

Полная ставка аренды - 40 000 руб. за кв. м/год. НДС включен, эксплуатация включена
Месячный арендный платеж – 720 000 руб./месяц.
Коммунальные расходы - По счётчикам

Бизнес-центр «Авион (строение 2)» находится по адресу: Москва, Ленинградский проспект, 47с2.
Район: Хорошевский
Год постройки здания: 2005
Налоговая: 14
Вентиляция: приточно-вытяжная
Пожарная система: Спринклерная
Ближайшие станции метро: Аэропорт (3 минут пешком)
Инфраструктура: Банк, Банкомат, Салон красоты, Кинотеатр
Кол-во лифтов: 8
Юридический адрес: предоставляется

Позвоните и мы ответим на все Ваши вопросы, направим презентацию с планировками и оперативно организуем показ. Наши услуги для Вас бесплатны!

Для быстрого поиска объекта в СРМ назовите менеджеру ID данного помещения - 14496

ID: 14496

 
Авион (строение 2)