Аренда и продажа недвижимости в Москве

ОСНОВНАЯ ИНФОРМАЦИЯ

  • Класс
    A
  • Площадь
    81.3 м2
  • Этаж
    3
  • Отделка
    С отделкой
  • Тип планировки
    Смешанная
  • Паркинг
    Наземный крытый
  • Налоговая
    №30

Расположение объекта

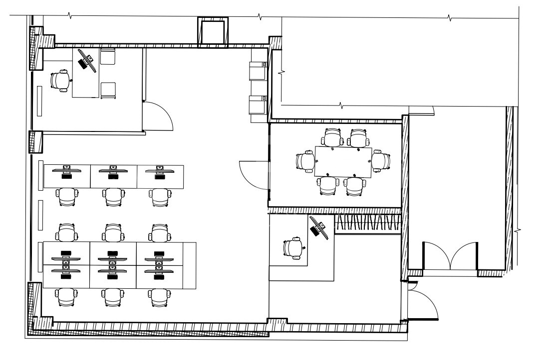
ОПИСАНИЕ

Коворкинг с сервисами для арендаторов. Возможна сдача в аренду с мебелью. Офисное пространство, полностью готовое к въезду!

Субаренда коворкинга 81.3 кв. м в бизнес-центре «Poklonka Place (Поклонка Плейс)» (класс A).
Этаж: 3.
Кол-во рабочих мест - 10
Отделка - с отделкой
Наличие мебели - с мебелью
Тип планировки - смешанная.
Вход - общий с улицы
Мокрые точки - да
Сан. узлы - на этаже
Наличие кухни - да.
Назначение: Офис

Полная ставка аренды - 102 642 руб. за кв. м/год. НДС включен, эксплуатация включена
Месячный арендный платеж – 695 400 руб./месяц.
Коммунальные расходы - Включены

Бизнес-центр «Poklonka Place (Поклонка Плейс)» находится по адресу: Москва, Поклонная улица, 3.
Район: Дорогомилово
Год постройки здания: 2014
Налоговая: 30
Наличие паркинга: подземный
Вентиляция: приточно-вытяжная
Пожарная система: Да
Ближайшие станции метро: Кутузовская (6 минут пешком)
Инфраструктура: Магазин, Аптека, Автосервис, Банкомат, Банк, Столовая, Ресторан, Кафе, Бар
Кол-во лифтов: 34
Юридический адрес: предоставляется

Позвоните и мы ответим на все Ваши вопросы, направим презентацию с планировками и оперативно организуем показ. Наши услуги для Вас бесплатны!

Для быстрого поиска объекта в СРМ назовите менеджеру ID данного помещения - 14176

ID: 14176

 
Poklonka Place (Поклонка Плейс)