Аренда и продажа недвижимости в Москве

ОСНОВНАЯ ИНФОРМАЦИЯ

  • Класс
    B
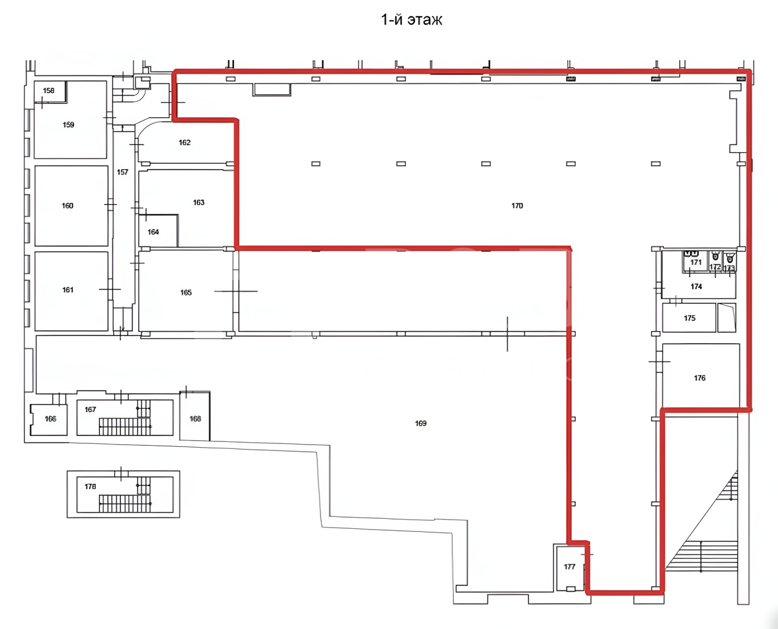
  • Площадь
    613.1 м2
  • Этаж
    1
  • Отделка
    С отделкой
  • Тип планировки
    Смешанная
  • Паркинг
    Наземный крытый
  • Налоговая
    №3

Расположение объекта

ОПИСАНИЕ

Аренда ПСН 613.1 кв. м в бизнес-центре «Пресненский Вал ул., 14 » (класс B).
Этаж: 1.
Отделка - с отделкой
Тип планировки - смешанная.
Вход - отдельный с улицы
Мокрые точки - да
Сан. узлы - в блоке
Назначение: Офис, Торговая площадь, Салон красоты

Полная ставка аренды - 36 000 руб. за кв. м/год. НДС включен, эксплуатация включена
Месячный арендный платеж – 1 839 300 руб./месяц.
Коммунальные расходы - По счётчикам

Бизнес-центр «Пресненский Вал ул., 14 » находится по адресу: Пресненский Вал ул., 14 .
Район: Пресненский
Год постройки здания: 1978
Налоговая: 3
Вентиляция: приточно-вытяжная
Ближайшие станции метро: Улица 1905 года (7 минут пешком)
Инфраструктура: Гостиница, Турагенство, Столовая, Ресторан, Кафе, Бар
Кол-во лифтов: 4

Позвоните и мы ответим на все Ваши вопросы, направим презентацию с планировками и оперативно организуем показ. Наши услуги для Вас бесплатны!

Для быстрого поиска объекта в СРМ назовите менеджеру ID данного помещения - 13739

ID: 13739

 
Пресненский Вал, 14


     

    Ваш консультант

    Елена