Аренда и продажа недвижимости в Москве

ОСНОВНАЯ ИНФОРМАЦИЯ

  • Класс
    B+
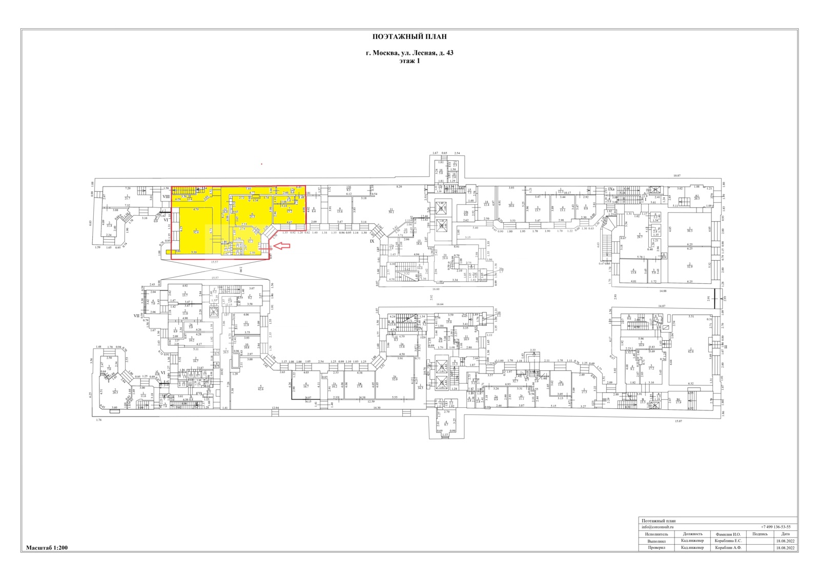
  • Площадь
    185 м2
  • Этаж
    1
  • Отделка
    С отделкой
  • Тип планировки
    Смешанная
  • Паркинг
    Наземный крытый
  • Налоговая
    №7

Расположение объекта

ОПИСАНИЕ

Аренда ПСН 185 кв. м в бизнес-центре «Лесная улица, 43» (класс B+).
Этаж: 1.
Отделка - с отделкой
Тип планировки - смешанная.
Вход - отдельный с улицы
Мокрые точки - да
Сан. узлы - в блоке
Помещение - свободно с 01.02.2026.

Полная ставка аренды - 58 400 руб. за кв. м/год. НДС включен, эксплуатация включена
Месячный арендный платеж – 900 333 руб./месяц.
Коммунальные расходы - По счётчикам

Бизнес-центр «Лесная улица, 43» находится по адресу: Москва, Лесная улица, 43.
Район: Тверской
Год постройки здания: 1914
Налоговая: 7
Вентиляция: приточно-вытяжная
Пожарная система: Да
Ближайшие станции метро: Белорусская (6 минут пешком)
Инфраструктура: Бар, Кафе, Столовая, Курьерские услуги, Банк, Банкомат, Срочное фото, Химчистка, Полиграфия, Автомойка, Автосервис, Кинотеатр, Аптека, Медицинский центр, Магазин, Гостиница, Бюро переводов, Иностранные языки
Кол-во лифтов: 5

Если Вас заинтересовало данное помещение - позвоните и мы ответим на все ваши вопросы. Объявление актуально! Наши услуги для Вас бесплатны!

Для быстрого поиска объекта в СРМ назовите менеджеру ID данного помещения - 13714

ID: 13714

 
Лесная улица, 43