Аренда и продажа недвижимости в Москве

ОСНОВНАЯ ИНФОРМАЦИЯ

  • Класс
    A
  • Площадь
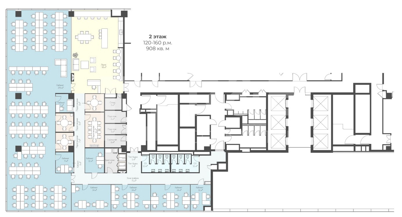
    908 м2
  • Этаж
    2
  • Отделка
    С отделкой
  • Тип планировки
    Смешанная
  • Паркинг
    Наземный крытый
  • Налоговая
    №14

Расположение объекта

ОПИСАНИЕ

Коворкинг с сервисами для арендаторов. Возможна сдача в аренду с мебелью. Офисное пространство, полностью готовое к въезду!

Аренда коворкинга 908 кв. м в бизнес-центре «Аркус III (ARCUS III)» (класс A).
Этаж: 2.
Кол-во рабочих мест - 160
Отделка - с отделкой
Наличие мебели - с мебелью
Тип планировки - смешанная.
Вход - общий с улицы
Мокрые точки - да
Сан. узлы - в блоке
Наличие кухни - да.
Помещение - свободно с 01.06.2026.
Назначение: Офис

Полная ставка аренды - 154 784 руб. за кв. м/год. НДС включен, эксплуатация включена
Месячный арендный платеж – 11 711 989 руб./месяц.
Коммунальные расходы - Включены

Бизнес-центр «Аркус III (ARCUS III)» находится по адресу: Москва, Ленинградский проспект, 37Ак4.
Район: Хорошёвский
Год постройки здания: 2014
Налоговая: 14
Вентиляция: приточно-вытяжная
Пожарная система: Гидратная
Ближайшие станции метро: Динамо (17 минут пешком), ЦСКА (7 минут пешком)
Кол-во лифтов: 7

Позвоните и мы ответим на все Ваши вопросы, направим презентацию с планировками и оперативно организуем показ. Наши услуги для Вас бесплатны!

Для быстрого поиска объекта в СРМ назовите менеджеру ID данного помещения - 13546

ID: 13546

 
Аркус III (ARCUS III)