Аренда и продажа недвижимости в Москве

ОСНОВНАЯ ИНФОРМАЦИЯ

  • Класс
    B
  • Площадь
    1 164 м2
  • Этаж
    1-2
  • Отделка
    С отделкой
  • Тип планировки
    Смешанная
  • Паркинг
    Наземный крытый
  • Налоговая
    №8

Расположение объекта

ОПИСАНИЕ

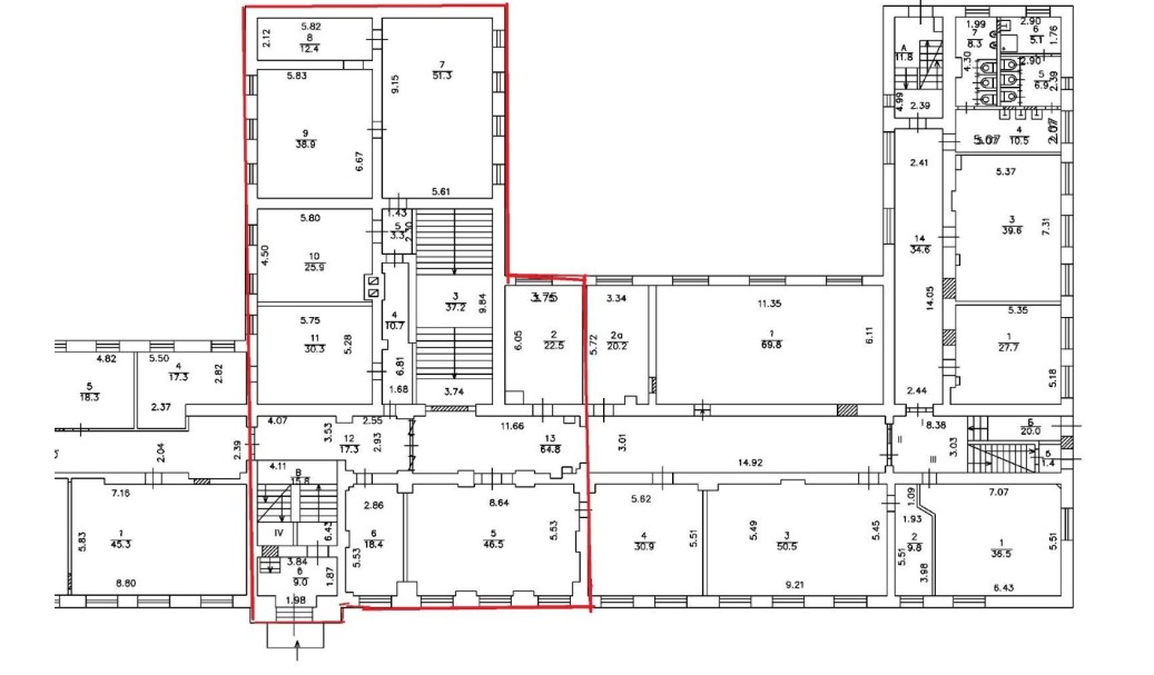
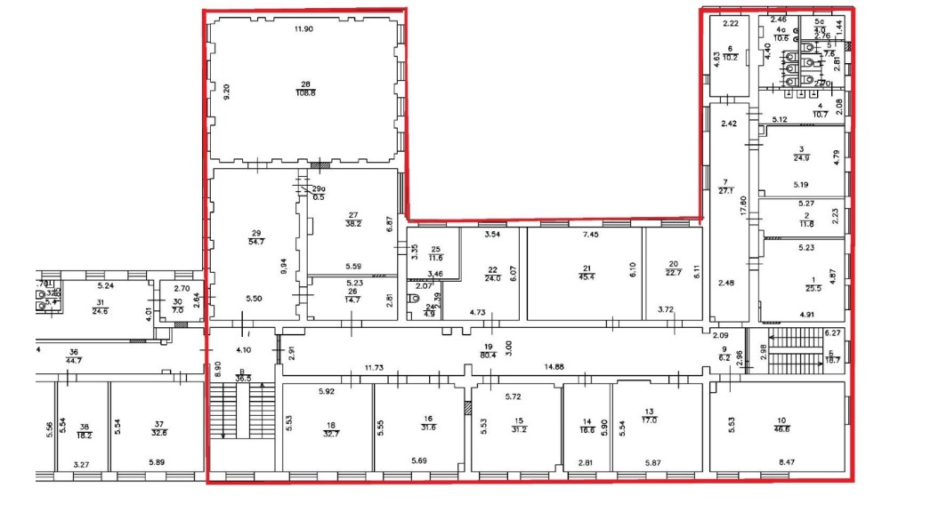
Аренда офиса 1164 кв. м в бизнес-центре «Union Center (Юнион Центр)» (класс B).
Этаж: 1-2.
Отделка - с отделкой
Тип планировки - смешанная.
Вход - общий с улицы
Мокрые точки - да
Наличие кухни - да.

Полная ставка аренды - 37 099 руб. за кв. м/год. НДС включен, эксплуатация включена
Месячный арендный платеж – 3 598 603 руб./месяц.
Коммунальные расходы - По счётчикам

Бизнес-центр «Union Center (Юнион Центр)» находится по адресу: Москва, Новорязанская улица, 8Ас1.
Район: Красносельский
Год постройки здания: 1939
Налоговая: 8
Ближайшие станции метро: Комсомольская (7 минут пешком)
Юридический адрес: предоставляется

Если Вас заинтересовало данное помещение - позвоните и мы ответим на все ваши вопросы. Объявление актуально! Наши услуги для Вас бесплатны!

Для быстрого поиска объекта в СРМ назовите менеджеру ID данного помещения - 13176

ID: 13176

 
Union Center (Юнион Центр)


     

    Ваш консультант

    Елена