Аренда и продажа недвижимости в Москве

ОСНОВНАЯ ИНФОРМАЦИЯ

  • Класс
    B+
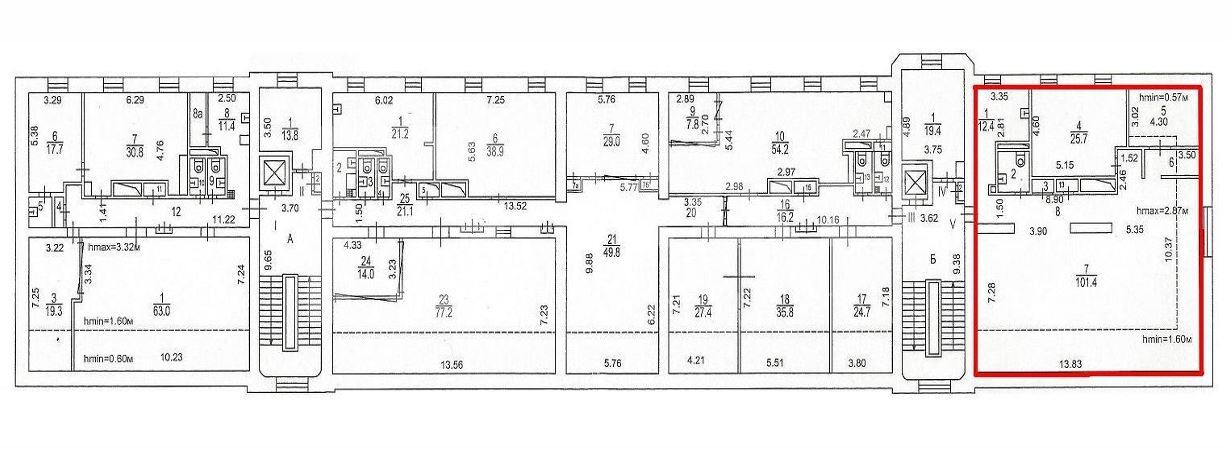
  • Площадь
    177.6 м2
  • Этаж
    5
  • Отделка
    С отделкой
  • Тип планировки
    Смешанная
  • Налоговая
    №7

Расположение объекта

ОПИСАНИЕ

Аренда офиса 177.6 кв. м в бизнес-центре «Столешников переулок, 14» (класс B+).
Этаж: 5.
Отделка - с отделкой
Тип планировки - смешанная.
Мокрые точки - да
Сан. узлы - в блоке
Наличие кухни - да.

Полная ставка аренды - 51 080 руб. за кв. м/год. НДС включен, эксплуатация включена
Месячный арендный платеж – 755 984 руб./месяц.
Коммунальные расходы - Не включено

Бизнес-центр «Столешников переулок, 14» находится по адресу: Москва, Столешников переулок, 14.
Район: Тверской
Год постройки здания: 1892
Налоговая: 7
Вентиляция: приточно-вытяжная
Ближайшие станции метро: Охотный Ряд (9 минут пешком), Пушкинская (10 минут пешком)
Инфраструктура: Гостиница, магазины, рестораны, банки....
Кол-во лифтов: 2

Если Вас заинтересовало данное помещение - позвоните и мы ответим на все ваши вопросы. Объявление актуально! Наши услуги для Вас бесплатны!

Для быстрого поиска объекта в СРМ назовите менеджеру ID данного помещения - 12930

ID: 12930

 
Столешников переулок, 14


     

    Ваш консультант

    Елена