Аренда и продажа недвижимости в Москве

ОСНОВНАЯ ИНФОРМАЦИЯ

  • Класс
    A
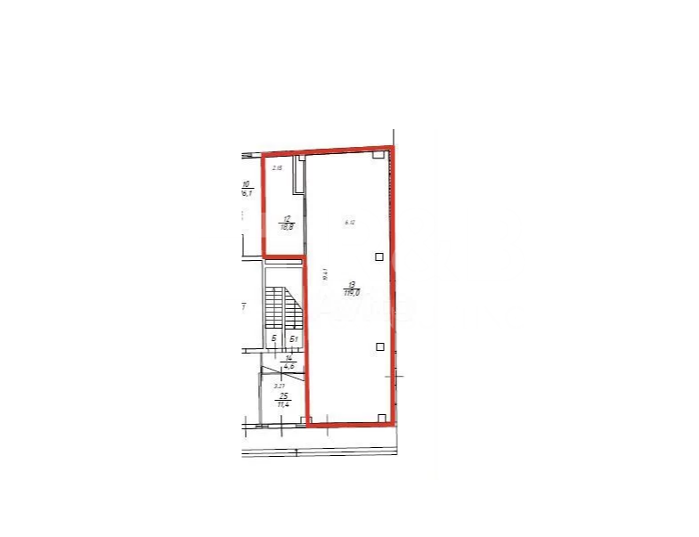
  • Площадь
    137 м2
  • Этаж
    1
  • Отделка
    С отделкой
  • Тип планировки
    Open-space
  • Паркинг
    Наземный крытый
  • Налоговая
    №2

Расположение объекта

ОПИСАНИЕ

Аренда ресторана 137 кв. м в бизнес-центре «Etmia 2 (Этмиа)» (класс A).
Этаж: 1.
Отделка - с отделкой
Тип планировки - open-space.
Вход - отдельный с улицы
Назначение: Кафе/ресторан

Полная ставка аренды - 105 109 руб. за кв. м/год. Налог: УСН, эксплуатация включена
Месячный арендный платеж – 1 199 994 руб./месяц.

Бизнес-центр «Etmia 2 (Этмиа)» находится по адресу: Москва, улица Щепкина, 33.
Район: Мещанский
Год постройки здания: 2009
Налоговая: 2
Вентиляция: приточно-вытяжная
Ближайшие станции метро: Проспект Мира (5 минут пешком)
Инфраструктура: Ремонт оргтехники, Заправка картриджей, Кинотеатр, Турагенство, Банкомат, Банк, Курьерские услуги, Столовая, Ресторан, Кафе, Бар
Кол-во лифтов: 3

Позвоните и мы ответим на все Ваши вопросы, направим презентацию с планировками и оперативно организуем показ. Наши услуги для Вас бесплатны!

Для быстрого поиска объекта в СРМ назовите менеджеру ID данного помещения - 12742

ID: 12742

 
Etmia 2 (Этмиа)


     

    Ваш консультант

    Наталья