Аренда и продажа недвижимости в Москве

ОСНОВНАЯ ИНФОРМАЦИЯ

  • Класс
    B
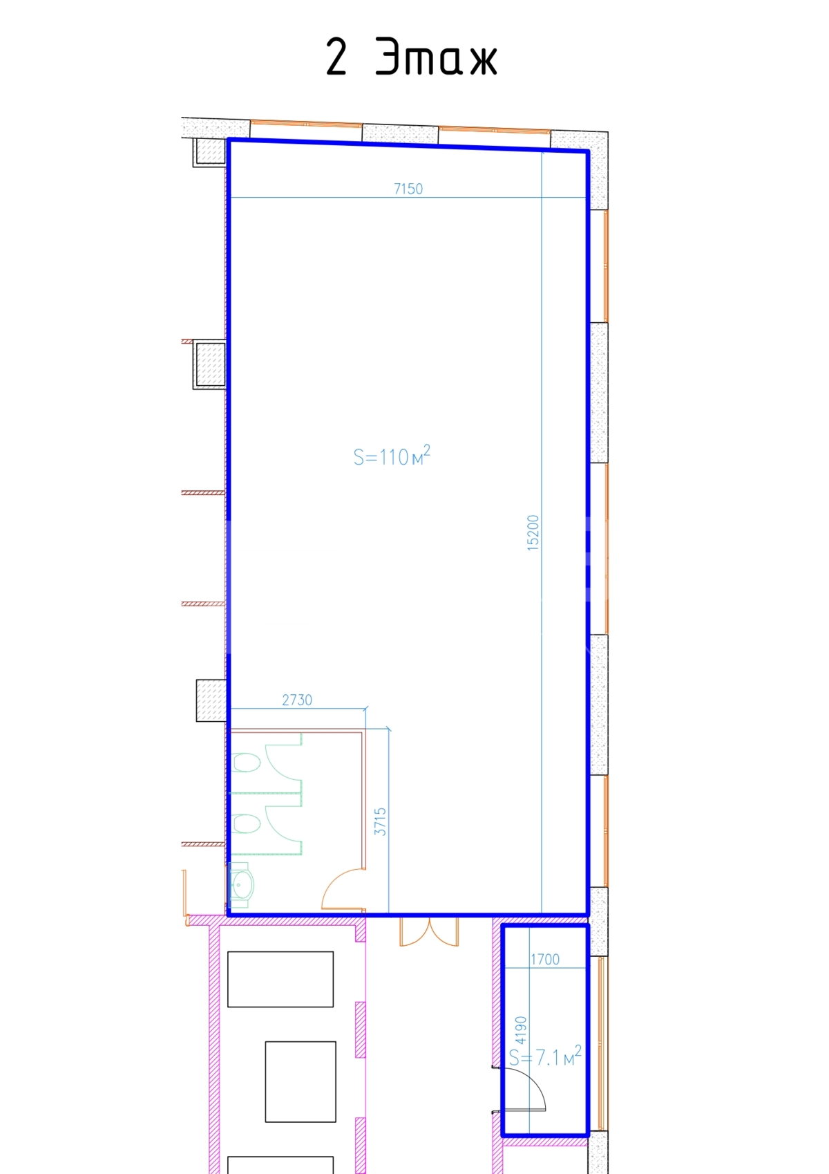
  • Площадь
    133 м2
  • Этаж
    2
  • Отделка
    С отделкой
  • Тип планировки
    Смешанная
  • Паркинг
    Наземный крытый
  • Налоговая
    №2

Расположение объекта

ОПИСАНИЕ

Субаренда офиса 133 кв. м в бизнес-центре «Европа Хаус» (класс B).
Этаж: 2.
Отделка - с отделкой
Тип планировки - смешанная.
Вход - общий с улицы
Мокрые точки - да
Сан. узлы - в блоке
Наличие кухни - да.
Помещение - свободно с 01.11.2025.
Назначение: Офис

Полная ставка аренды - 48 800 руб. за кв. м/год. НДС включен, эксплуатация включена
Месячный арендный платеж – 540 867 руб./месяц.
Коммунальные расходы - Включены

Бизнес-центр «Европа Хаус» находится по адресу: Москва, Колокольников переулок, 11.
Район: Мещанский
Год постройки здания: 2004
Налоговая: 2
Наличие паркинга: подземный (47 м/м)
Вентиляция: приточно-вытяжная
Пожарная система: Да
Ближайшие станции метро: Трубная (5 минут пешком)
Инфраструктура: Магазин, Бюро переводов, Иностранные языки
Кол-во лифтов: 3

Позвоните и мы ответим на все Ваши вопросы, направим презентацию с планировками и оперативно организуем показ. Наши услуги для Вас бесплатны!

Для быстрого поиска объекта в СРМ назовите менеджеру ID данного помещения - 12680

ID: 12680

 
Европа Хаус