Аренда и продажа недвижимости в Москве

ОСНОВНАЯ ИНФОРМАЦИЯ

  • Класс
    A
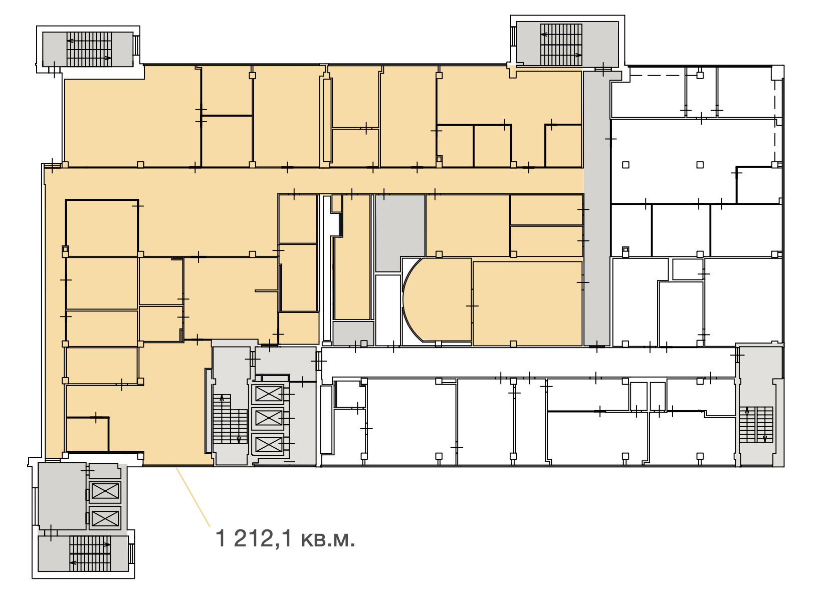
  • Площадь
    1 212.1 м2
  • Этаж
    3
  • Отделка
    С отделкой
  • Тип планировки
    Кабинетная
  • Паркинг
    Наземный крытый
  • Налоговая
    №31

Расположение объекта

ОПИСАНИЕ

Аренда офиса 1212.1 кв. м в бизнес-центре «Квадрат» (класс A).
Этаж: 3.
Отделка - с отделкой
Тип планировки - кабинетная.
Вход - общий с улицы
Мокрые точки - да
Сан. узлы - в блоке
Назначение: Офис

Полная ставка аренды - 38 500 руб. за кв. м/год. НДС включен, эксплуатация включена
Месячный арендный платеж – 3 888 821 руб./месяц.

Бизнес-центр «Квадрат» находится по адресу: Москва, Верейская улица, 11.
Район: Можайский 
Год постройки здания: 1985
Налоговая: 31
Вентиляция: приточно-вытяжная
Пожарная система: Спринклерная
Ближайшие станции метро: Давыдково (13 минут пешком)
Инфраструктура: Магазин,Банк
Кол-во лифтов: 5

Позвоните и мы ответим на все Ваши вопросы, направим презентацию с планировками и оперативно организуем показ. Наши услуги для Вас бесплатны!

Для быстрого поиска объекта в СРМ назовите менеджеру ID данного помещения - 11778

ID: 11778

 
Квадрат