Аренда и продажа недвижимости в Москве

ОСНОВНАЯ ИНФОРМАЦИЯ

  • Класс
    A
  • Площадь
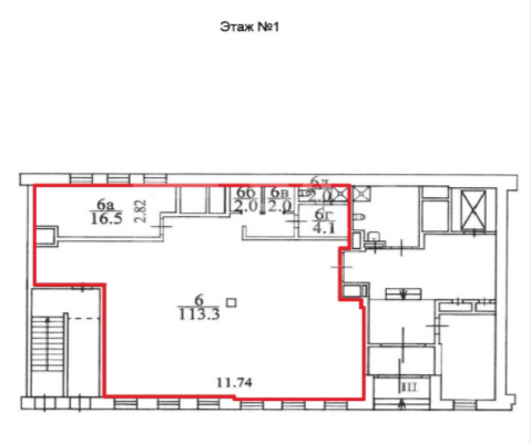
    139.9 м2
  • Этаж
    1
  • Отделка
    С отделкой
  • Тип планировки
    Open-space
  • Налоговая
    №2

Расположение объекта

ОПИСАНИЕ

Аренда офиса 139.9 кв. м в бизнес-центре «Нижний Кисельный переулок, 4» (класс A).
Этаж: цоколь.
Отделка - с отделкой
Тип планировки - open-space.
Вход - общий с улицы
Мокрые точки - да
Сан. узлы - в блоке

Полная ставка аренды - 55 754 руб. за кв. м/год. Налог: УСН, эксплуатация
включена
Месячный арендный платеж – 649 999 руб./месяц.
Коммунальные расходы - Не включено

Бизнес-центр «Нижний Кисельный переулок, 4» находится по адресу: Москва, Нижний
Кисельный переулок, 4.
Район: Мещанский
Год постройки здания: 2008
Налоговая: 2
Наличие паркинга: городской
Вентиляция: приточно-вытяжная
Пожарная система: Да
Ближайшие станции метро: Трубная (6 минут пешком), Лубянка (7 минут пешком)
Инфраструктура: Бар, Кафе, Ресторан, Столовая, Салон красоты

Если Вас заинтересовало данное помещение - позвоните и мы ответим на все ваши
вопросы. Объявление актуально! Наши услуги для Вас бесплатны!

Для быстрого поиска объекта в СРМ назовите менеджеру ID данного помещения -
11354

ID: 11354

 
Нижний Кисельный переулок, 4


     

    Ваш консультант

    Ульяна