Аренда и продажа недвижимости в Москве

ОСНОВНАЯ ИНФОРМАЦИЯ

  • Класс
    B+
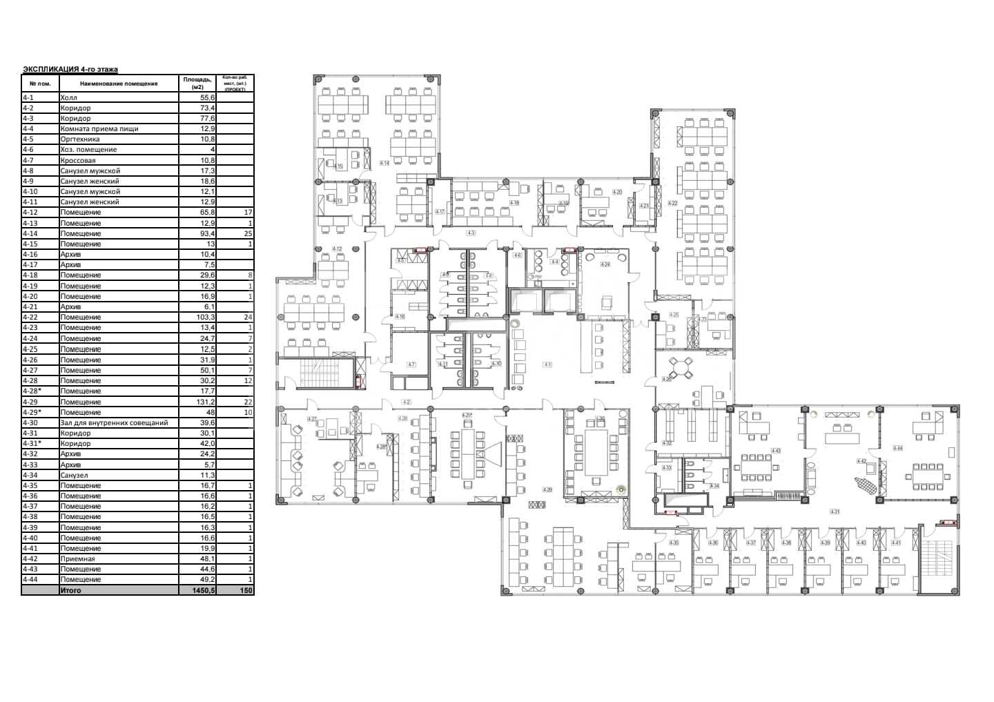
  • Площадь
    433.8 м2
  • Этаж
    4
  • Отделка
    С отделкой
  • Тип планировки
    Смешанная
  • Паркинг
    Наземный крытый
  • Налоговая
    №9

Расположение объекта

ОПИСАНИЕ

Аренда офиса 433.8 кв. м в бизнес-центре «Таганская улица, 34с3» (класс B+).
Этаж: 4.
Отделка - с отделкой
Тип планировки - смешанная.
Вход - общий с улицы
Мокрые точки - да
Назначение: Офис

Полная ставка аренды - 45 000 руб. за кв. м/год. НДС включен, эксплуатация включена
Месячный арендный платеж – 1 626 750 руб./месяц.
Коммунальные расходы - По счётчикам

Бизнес-центр «Таганская улица, 34с3» находится по адресу: Москва, Таганская улица, 34с3.
Район: Таганский
Год постройки здания: 2005
Налоговая: 9
Наличие паркинга:
- наземный, стоимость 10 000 руб. месяц (1 м/м)
- подземный, стоимость 15 000 руб. месяц (1 м/м)
Вентиляция: приточно-вытяжная
Ближайшие станции метро: Марксистская (11 минут пешком)
Инфраструктура: Курьерские услуги
Кол-во лифтов: 1

Позвоните и мы ответим на все Ваши вопросы, направим презентацию с планировками и оперативно организуем показ. Наши услуги для Вас бесплатны!

Для быстрого поиска объекта в СРМ назовите менеджеру ID данного помещения - 11174

ID: 11174

 
Таганская улица, 34с3